About:
I am a Professional Civil Engineer with experience of preparing drawings for construction, drawings for contacts and for presentation to clients and for building permits.
I offer the following services:
1. Site Plan or Lot Layout
2. Floor Plans (Price variable based on the floor area)
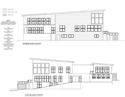
3. Elevation Drawings and Section View
4. Electrical Plan
5. Full set of drawings for presentation
6. Professional Drawings for new construction
7. Professional Drawings for renovation works
8. Structural Calculations (RCC, Timber framing, Steel Framing)
Please note that Prices may vary based on the project.
Why You should hire me:
+Professional services tailored for you
+You get a free source file (i.e AutoCAD/ Revit) and together with your drawings
+Fast delivery of high-quality workNote
1. Please get in touch with me for any question or work.
2. Please contact me before ordering so that we agree on what exactly you will get
Reviews
:
Abner was great and really produced me some great drawings that I can take.tp the city and engineer for approval. a bit of back and forth but Abner was patient and delivered great work.
:Professional work, quick delivery! Thank you!
:he deserves more than 5 stars
:He brought great ideas to this project. Would definitely work with him again.
:Nice job! Thank you!

No comments:
Post a Comment