Architecture & Floor Plans
Sunday, April 26, 2020
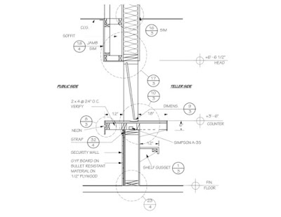
Create Space Plans Or Full Architectural Drawings
About:
Ranging from basic space planning to full architectural plans, I can provide design drawings quickly. I am certified in the state of California to stamp plans for building department submittals.
Reviews
: : : : :
No comments:
Post a Comment
Newer Post
Older Post
Home
Subscribe to:
Post Comments (Atom)
No comments:
Post a Comment