About:
If you need Rebar shop drawing detailing and rebar take off bar bending schedule, you are right place now.I am a civil engineer and structural detailer.
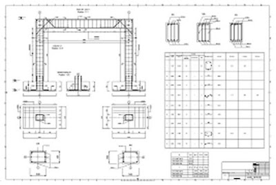
I will do rebar shop drawing and rebar take of bar bending schedule as per your requirement using autocad and microsoft excel.
Please see attached gig pdf file for sample drawing.
⚈Our Service:-
➤Rebar shop drawing detailing.
➤Rebar Take off bar bending schedule.
➤Rebar Estimating.
➤Architectural floor plan drawing.
➤Reinforcement Shop Drawing Detailing.
➤Autocad details drawing.
➤Plan, section, elevation, site plan, master plan.
➤All Type Autocad drawing.
⚈why choice me?
➥Professional rebar shop drawing details.
➥100% appropriate rebar estimate.
➥Unlimited revision.
➥Affordable price.
➥ 100% return money.
Note: Contact me before order
Tag: Reinforcement Fabric drawing detailing/Rebar Shop Drawing/Rebar Fabric Drawing/Rebar Take off/ Rebar Takeoff/ Bar Bending Schedule/ Rebar Estimating/ Reinforcement Estimating/ BOQ/ Bill of Quantity/ Detail drawing.
Reviews
Seller's Response:
did a good job
Seller's Response:Good buy, Thank you
Seller's Response:Housedesigner1 is excellent at doing shop drawings. Not always easy to find someone that knows how to do them and he does a great job.
:I have a 9-story building project. I needed re-bar shop drawings. He is very professional. When I have a question, he always answers in no time. If I need shop drawing for next project, I will defiantly work with him.
:Good experience, thank you.

No comments:
Post a Comment